Zahradní návrhy
Jana Macková
Zapnout navigaci
ÚVOD
O MNĚ
SLUŽBY
FOTOGALERIE
KONTAKT
FOTOGALERIE
Všechny mé návrhy jsou přizpůsobeny konkrétní zahradě a prostředí, ve kterém se nachází.
Okrasná zahrada Borek -
realizace svépomocí
Mini zahrada pro dva Borek -
realizace svépomocí
Relaxační zahrada Borek -
realizace na více etap
Hrob Vysoká nad Labem -
rekonstrukce výsadby
Okrasná zahrada Javornice -
realizace dodavatelsky i svépomocí
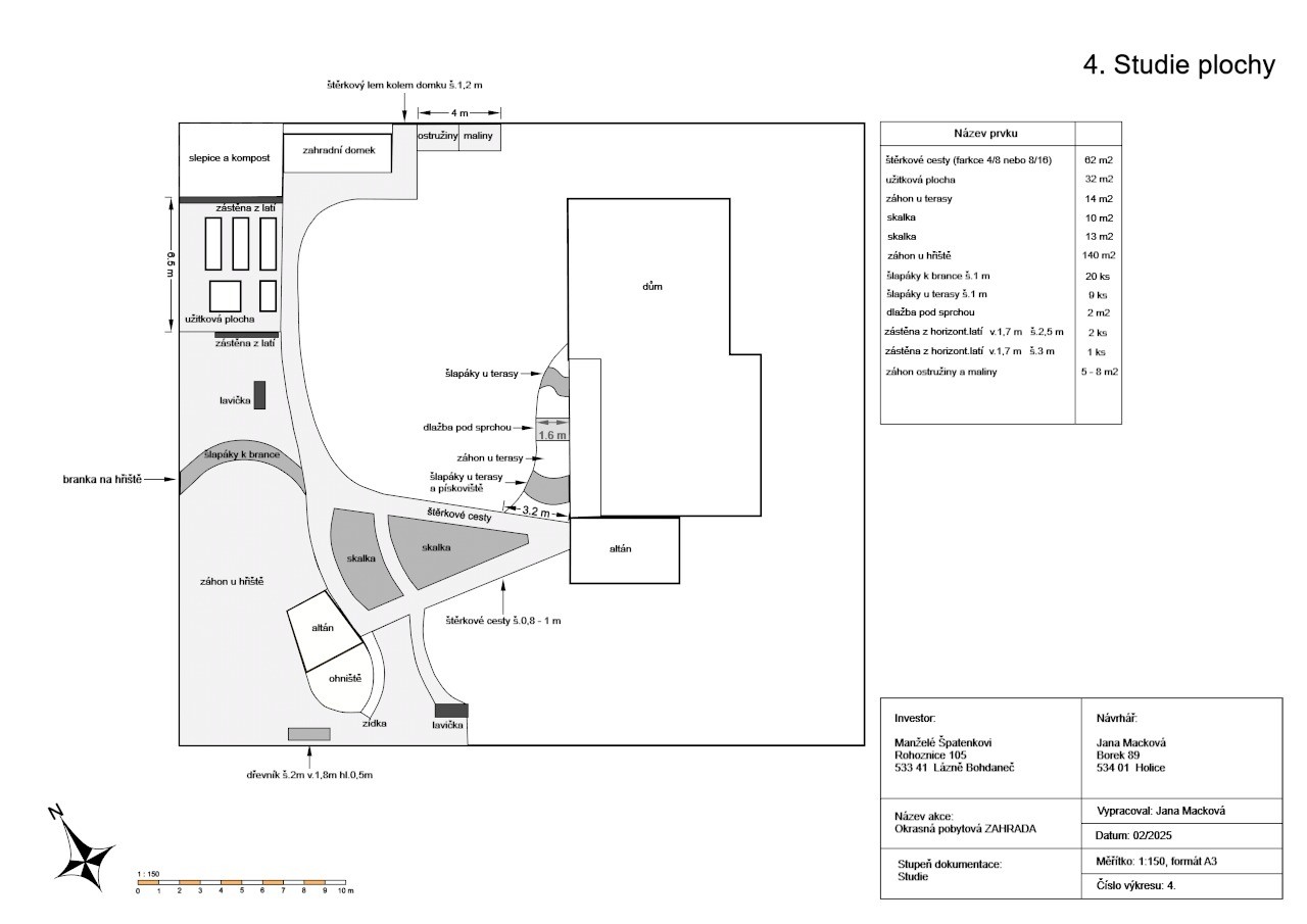
Okrasná pobytová zahrada Rohoznice -
úprava části zahrady (realizace svépomocí)